Browse our range of pre-designed framing kitsets. Through our in-house design team, Steeltec can handle your building consent documentation and amendments of existing plans to suit steel framing if required. With adaptable designs, each of our frames can be accommodated to fit your own steel framing and construction requirements.
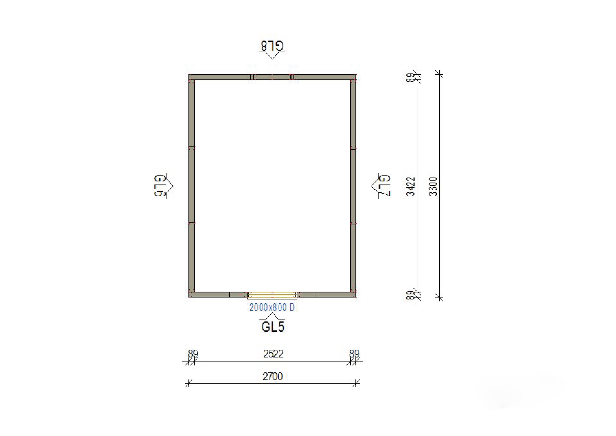
Glasshouse GH-002 - 2.7m x 3.6m (9.7sqm)
Glasshouse GH-002 - 2.7m x 3.6m (9.7sqm)
2.7m L x 3.6m W (9.7m2) x 2.3m H at apex (1.8m H stud on side walls) 20 degree roof pitch. Door opening 800mm W x 2000mm H. Window/vent opening 600mm W x 600mm H.
Our glasshouse steel frame kit includes roof frames, wall frames, door and window frames and ancillaries (screws, driver bits etc). This product is designed for plastic sheeting (panelling not included).
These are residential grade frames. Manufactured with 0.75 gauge galvanised steel. Roll formed into a 89mm x 40mm lipped c-section profile for strength. The advantage of using this type of framing system is that it can be re-purposed e.g. reclad it to convert it to a shed, line the walls internally, make play house etc.
With adaptable designs, each of our frames can be accommodated to fit your own steel framing and construction requirements.
Frames are manufactured in our factory in Waimate for collection. They can also be delivered either for free to your nearest Booths Logistics freight depot as a flat bundle pack for you to collect and fully assemble on site, or at an additional freight cost they can be supplied as pre assembled frames, ready to stand with frame to frame fixings provided. Freight costs are determined by the location provided for delivery.
Please note pricing covers steel frame kit supply only and is subject to change.
Call us on 04 887 3496 or use our estimate form for a free comprehensive estimate. Our team is ready to assist you with any inquiries and provide expert guidance regarding our listings and services.
For more information on building work that does not require consent click HERE



